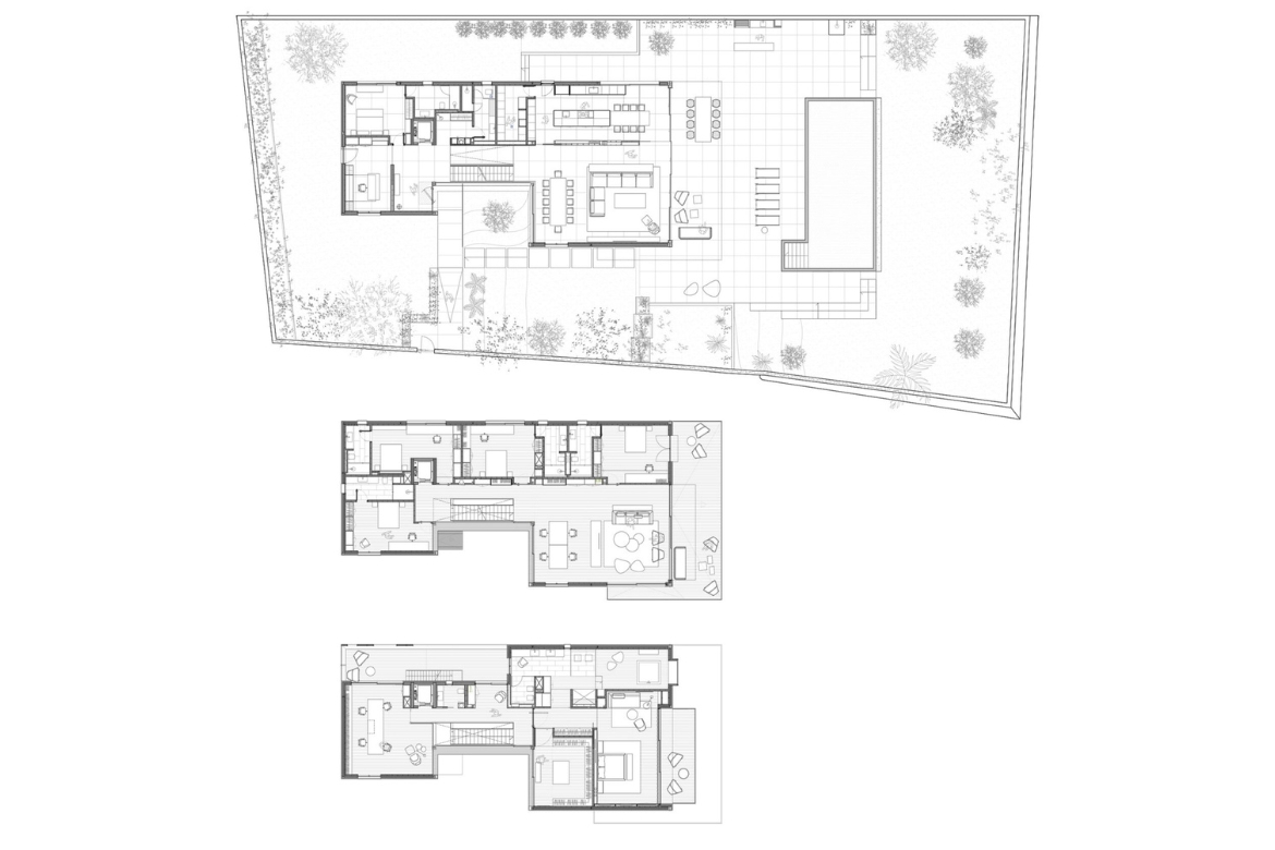
Superfície construïda
Aquest lloc web utilitza galetes per tal de proporcionar-vos la millor experiència d’usuari possible. La informació de les galetes s’emmagatzema al navegador i realitza funcions com ara reconèixer-vos quan torneu a la pàgina web i ajuda a l'equip a comprendre quines seccions del lloc web us semblen més interessants i útils.