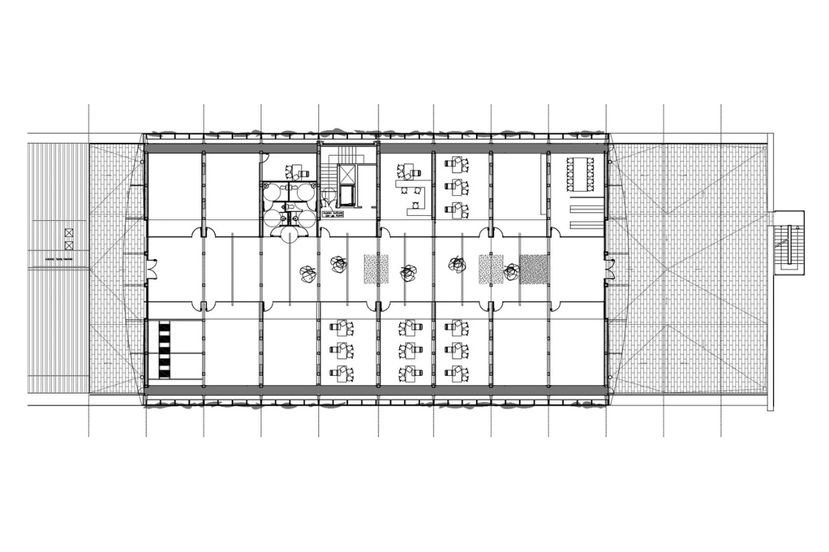
Remunta del CTTC a la UPC de Terrassa

Remunta del CTTC a la UPC de Terrassa

Situació

Campus Universitari de Terrassa

Superfície construïda

1.200m2

Promotor

UPC

Arquitectura

BOMA

Col.laboradors

Oriol Pujol Mata (Responsable de projecte)

Ves al contingut
This site is registered on wpml.org as a development site.