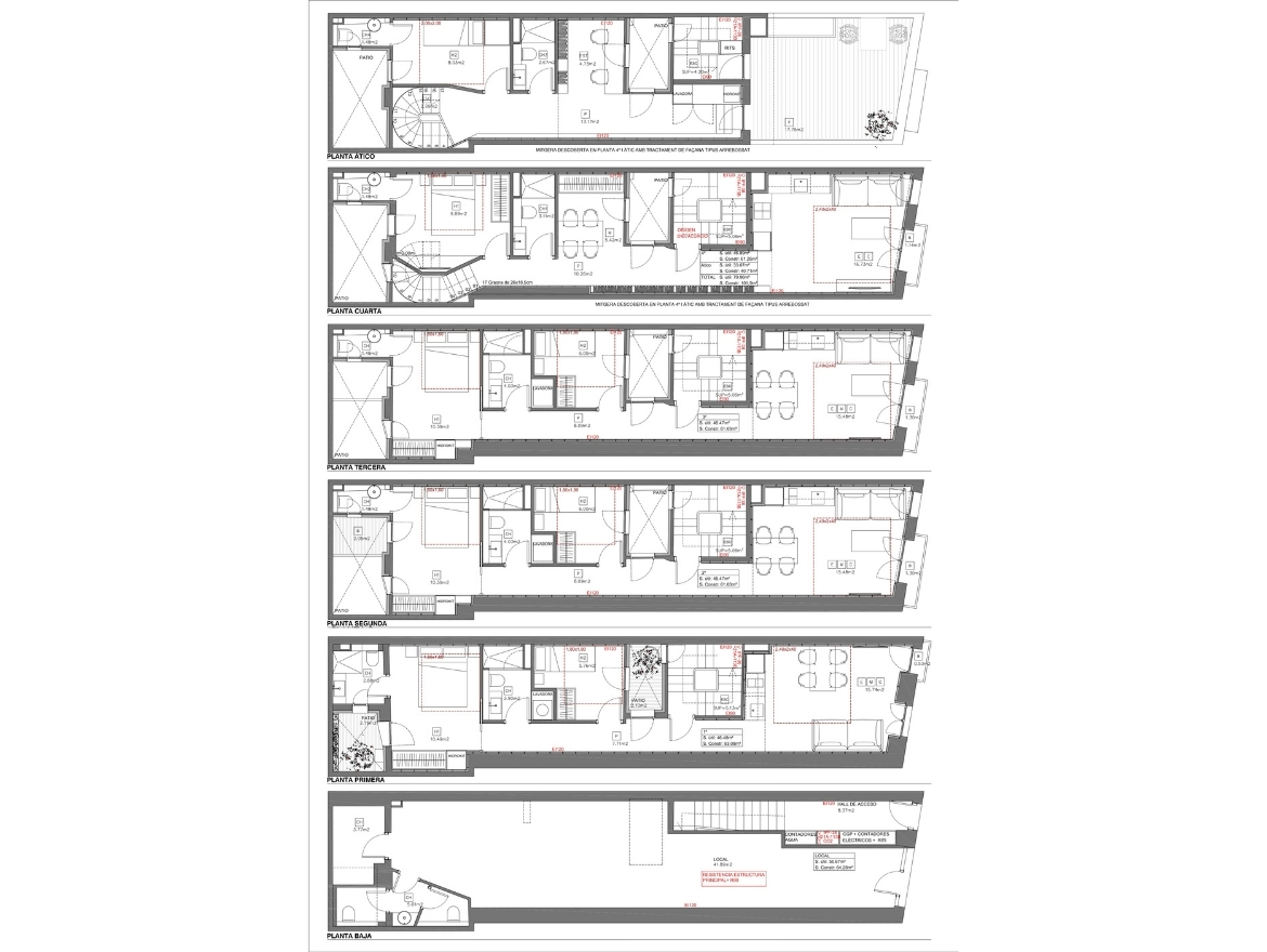
Rehabilitació integral d’un edifici d’habitatges

Rehabilitació integral d’un edifici d’habitatges

Situació

C/Merceria 26, Tarragona

Superfície construïda

395 m2

Promotor

TRYDE GESTIÓN, SL

Ves al contingut
This site is registered on wpml.org as a development site.