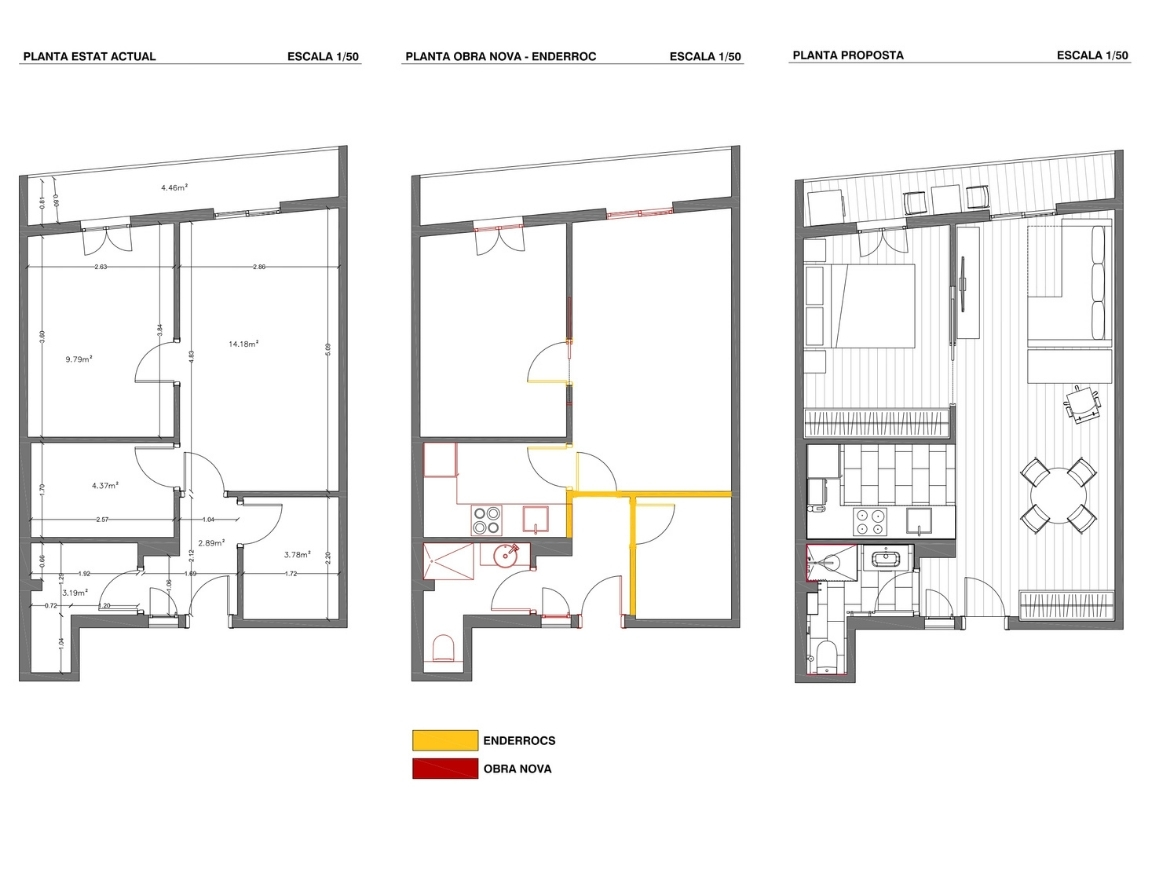
Reforma integral d’un habitatge

Reforma integral d’un habitatge

Situació

C/Santa Margarida 4,Barcelona

Superfície construïda

50 m2

Promotor

Carolina Rodríguez Ibarra

Ves al contingut
This site is registered on wpml.org as a development site.