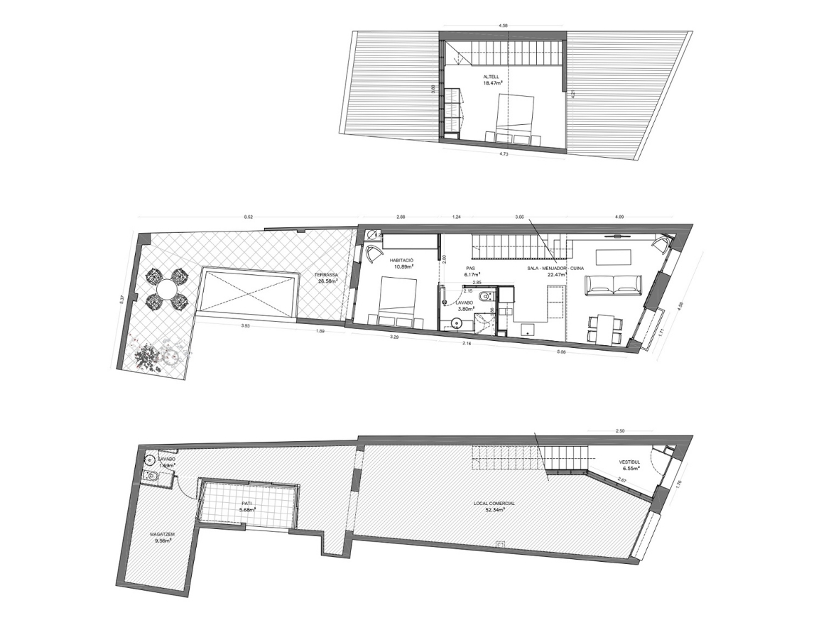
Reforma d’un habitatge

Reforma d’un habitatge

Situació

C/Major de Sarrià 78, Barcelona

Superfície construïda

50 m2

Promotor

Margarit Malladré, C.B

Col.laboradors

Bar 2004, S.L.

Ves al contingut
This site is registered on wpml.org as a development site.