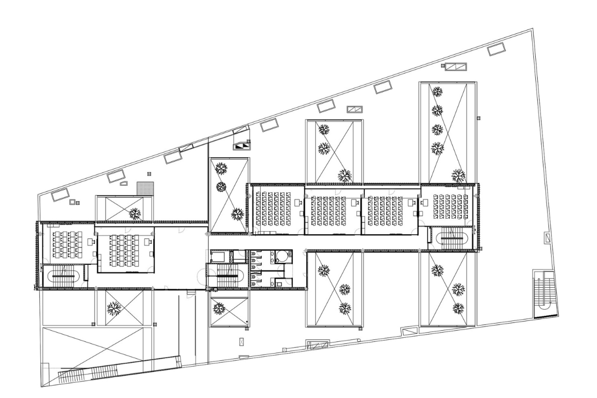
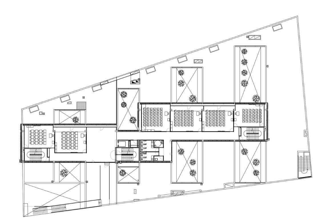
Escola oficial d’idiomes de Sabadell

Escola oficial d’idiomes de Sabadell

Situació

C/Brujas 165, Sabadell

Superfície construïda

8.300m2

Promotor

UPC

Arquitectura

BOMA / Nicanor Garcia

Col.laboradors

Oriol Pujol Mata (Responsable de projecte)

Arquitectura tècnica

Jan Dinarès

Ves al contingut
This site is registered on wpml.org as a development site.