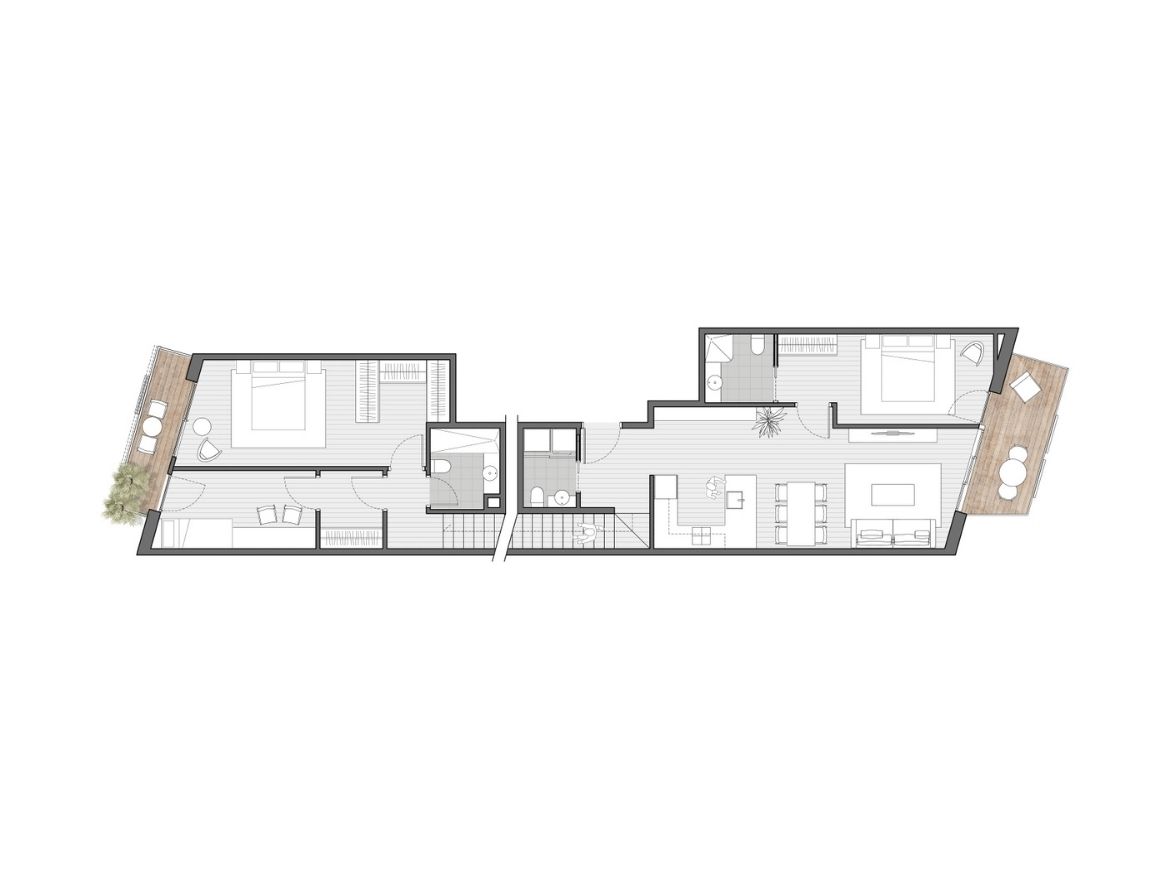
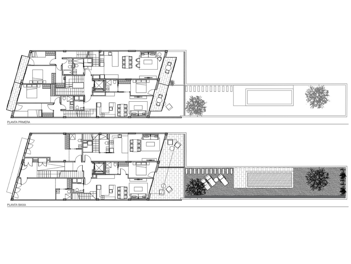
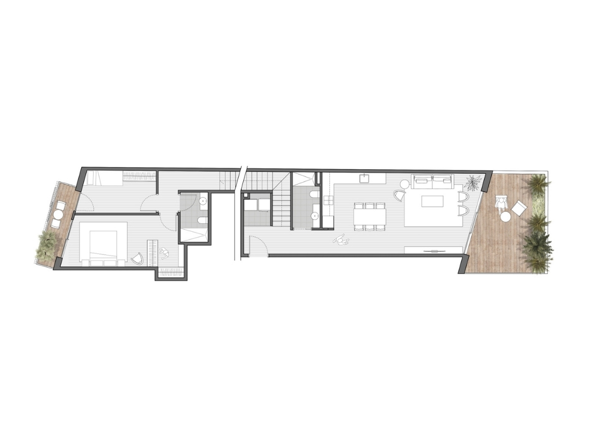
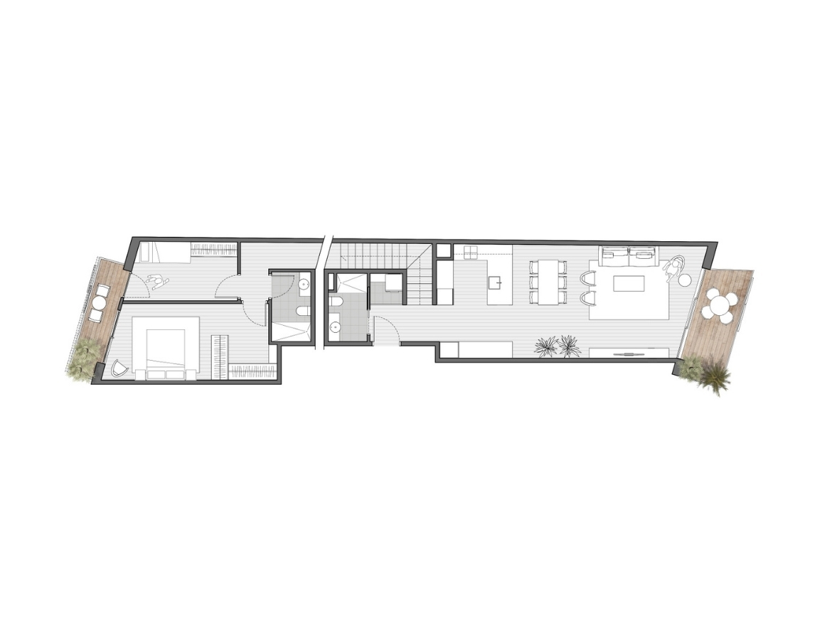
Edifici plurifamiliar de 6 habitatges i 2 locals

Edifici plurifamiliar de 6 habitatges i 2 locals

Situació

C/Dídac Priu 51-53, Sant Boi de Llobregat

Superfície construïda

736m2

Promotor

WINDUM DEVELOPMENTS, SL

Arquitectura tècnica

Javier Elizalde Saludas

Col.laboradors

bAR 2004, S.L, / Antoni Sala Pérez

Ves al contingut
This site is registered on wpml.org as a development site.