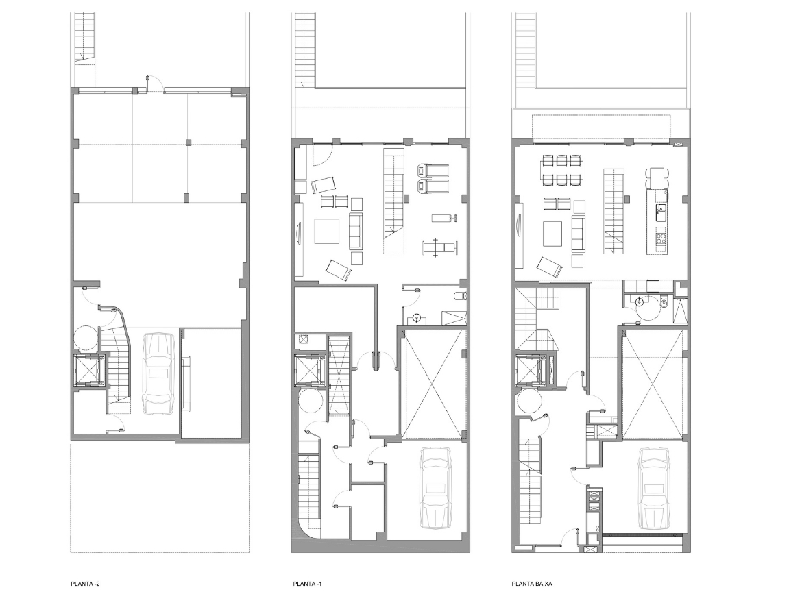
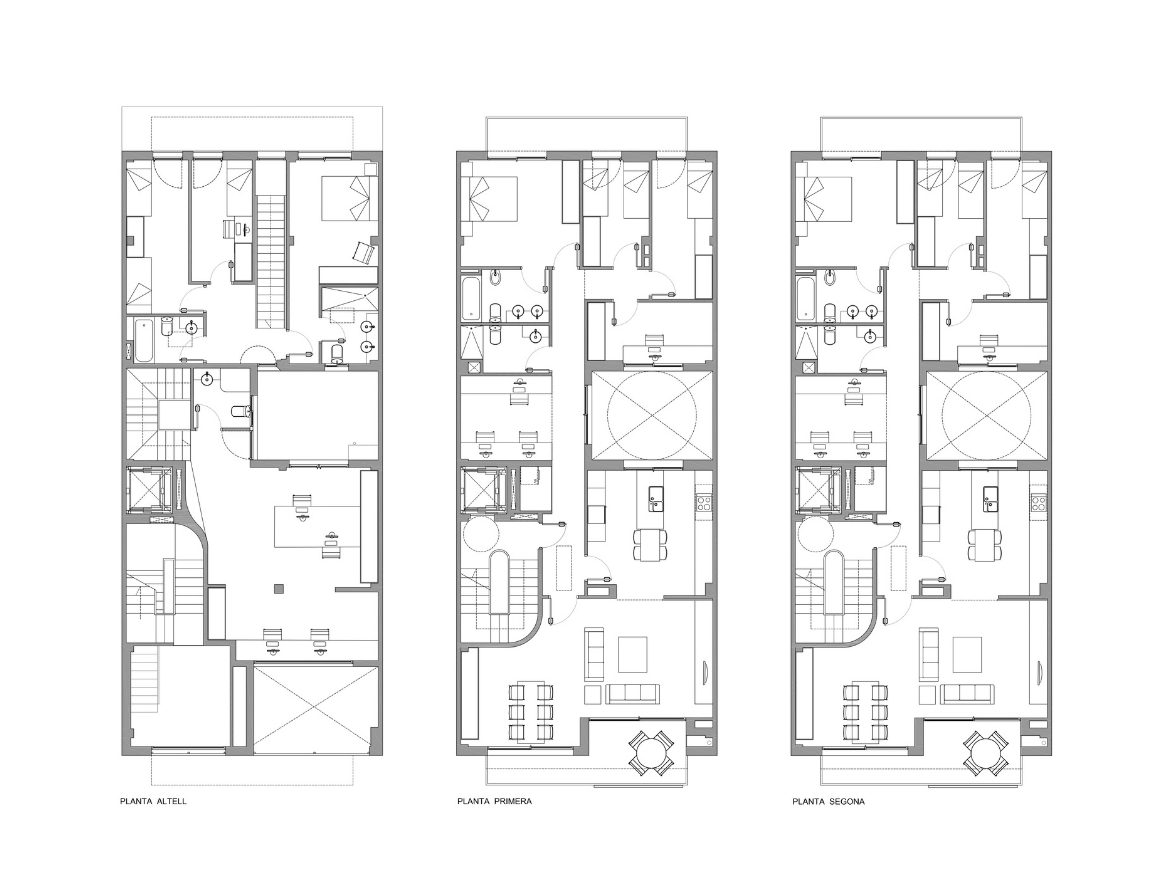
Edifici plurifamiliar de 3 habitatges local comercial i aparcament

Edifici plurifamiliar de 3 habitatges local comercial i aparcament

Situació

C/Mare de Deu del Coll 45, Barcelona

Superfície construïda

1.090 m2

Promotor

Proventia 96, SL

Arquitectura tècnica

Albert Brufau i Safont

Col.laboradors

MVA

Ves al contingut
This site is registered on wpml.org as a development site.