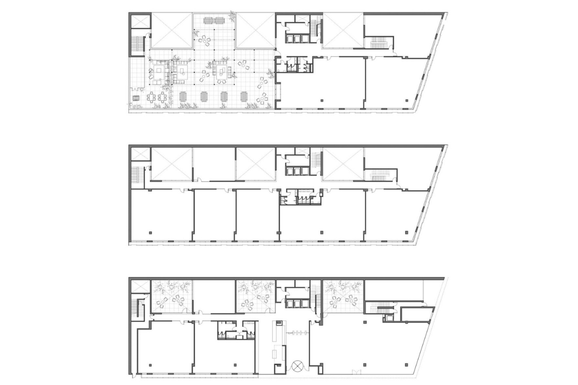
Edifici d’oficines al 22@

Edifici d’oficines al 22@

Situació

C/Pallars 99, Barcelona

Superfície construïda

10.600m2

Promotor

IMMOBILIÀRIA BARNAMOL

Arquitectura

CTS ARQUITECTES / bAR ARQUITECURA I DISSENY

Col.laboradors

Oriol Pujol Mata

Ves al contingut
This site is registered on wpml.org as a development site.