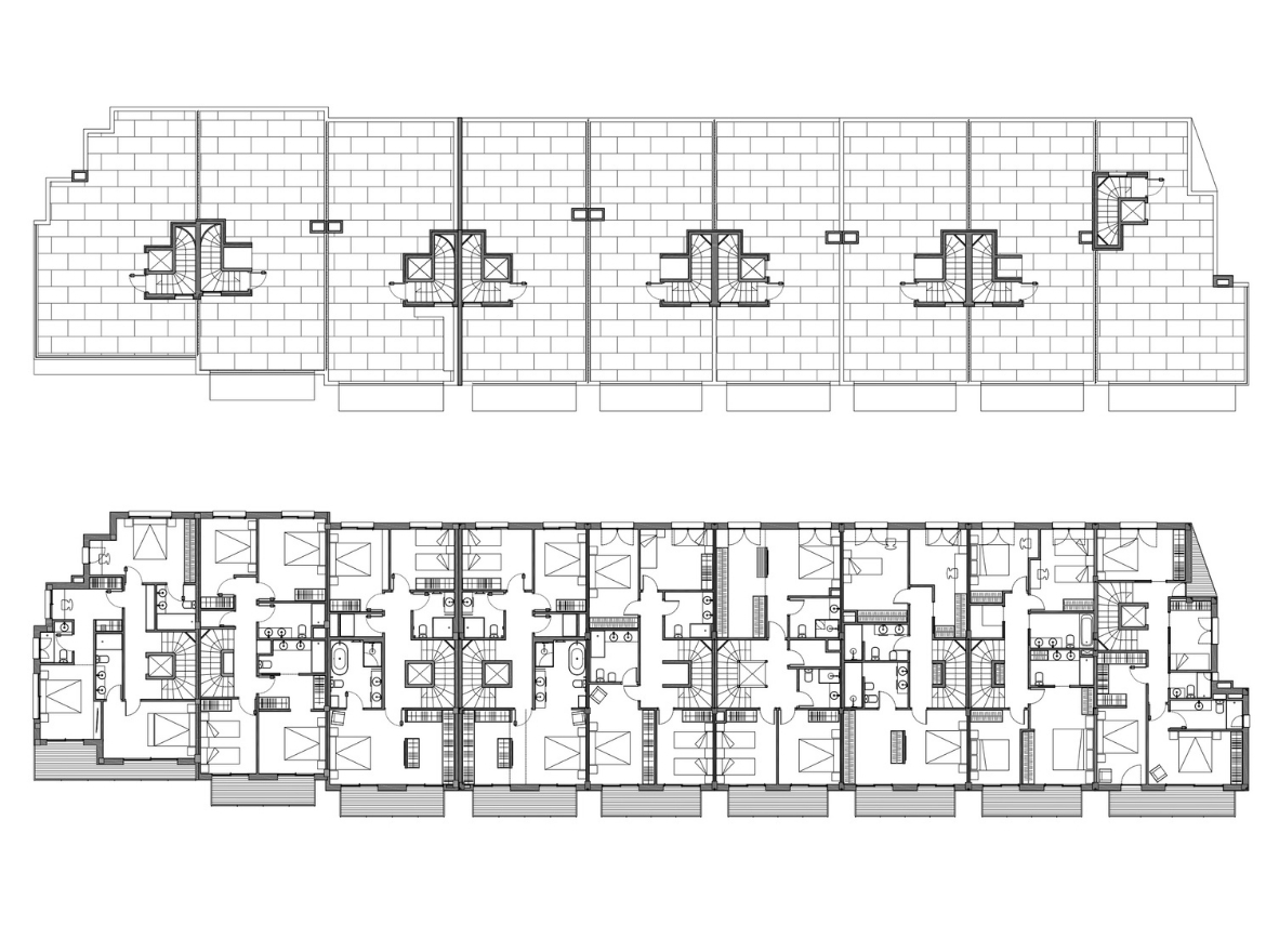
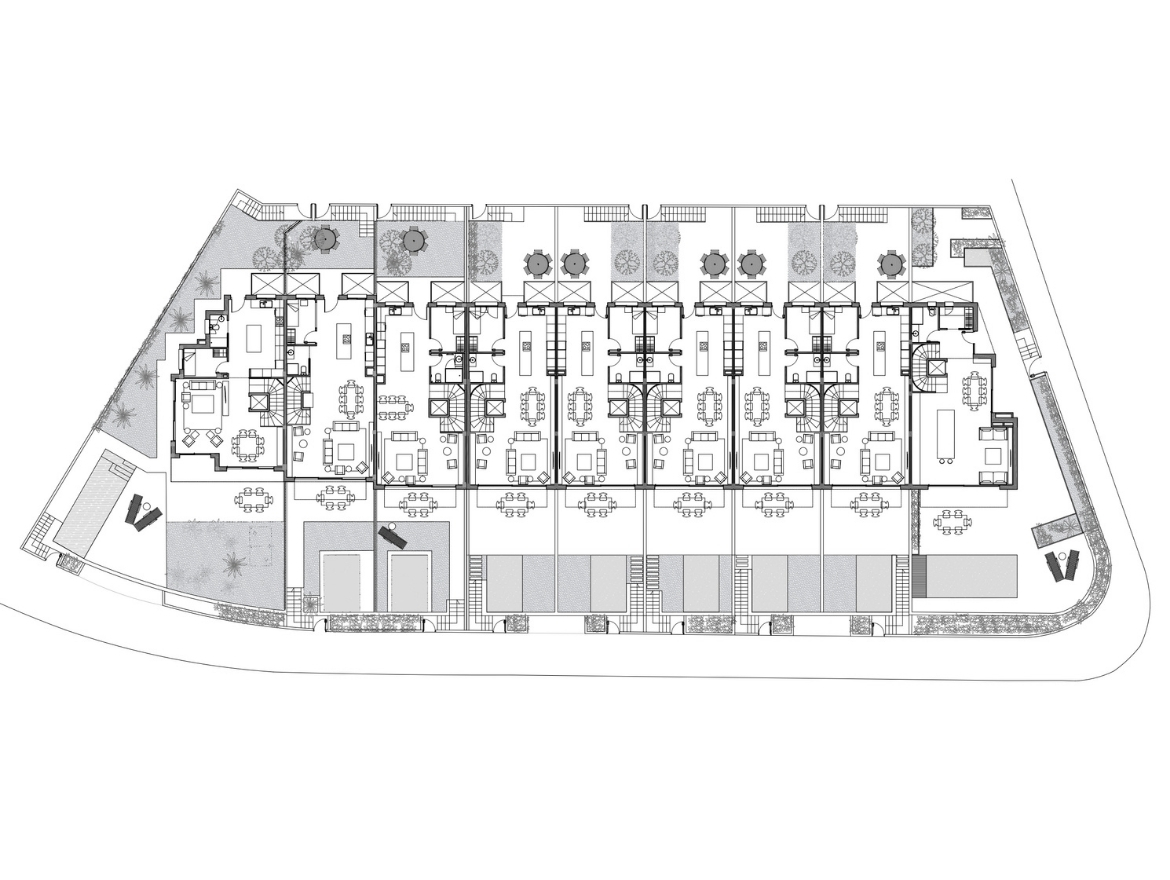
9 habitatges unifamiliars en filera

9 habitatges unifamiliars en filera

Situació

C/Josep Soler i Tasís / Ca la Blanca. Sitges

Superfície construïda

2.672m2

Promotor

PROMSYD, SL

Arquitectura tècnica

ARQUITECTURA TÈCNICA PUJOL I FERRER, SL

Col.laboradors

FORBACSA

Ves al contingut
This site is registered on wpml.org as a development site.